1518-1520 Park Avenue - 2B-North, Leasing Office , Baltimore, MD 21217
1518-1520 Park Avenue - 2B-North, Leasing Office , Baltimore, MD 21217
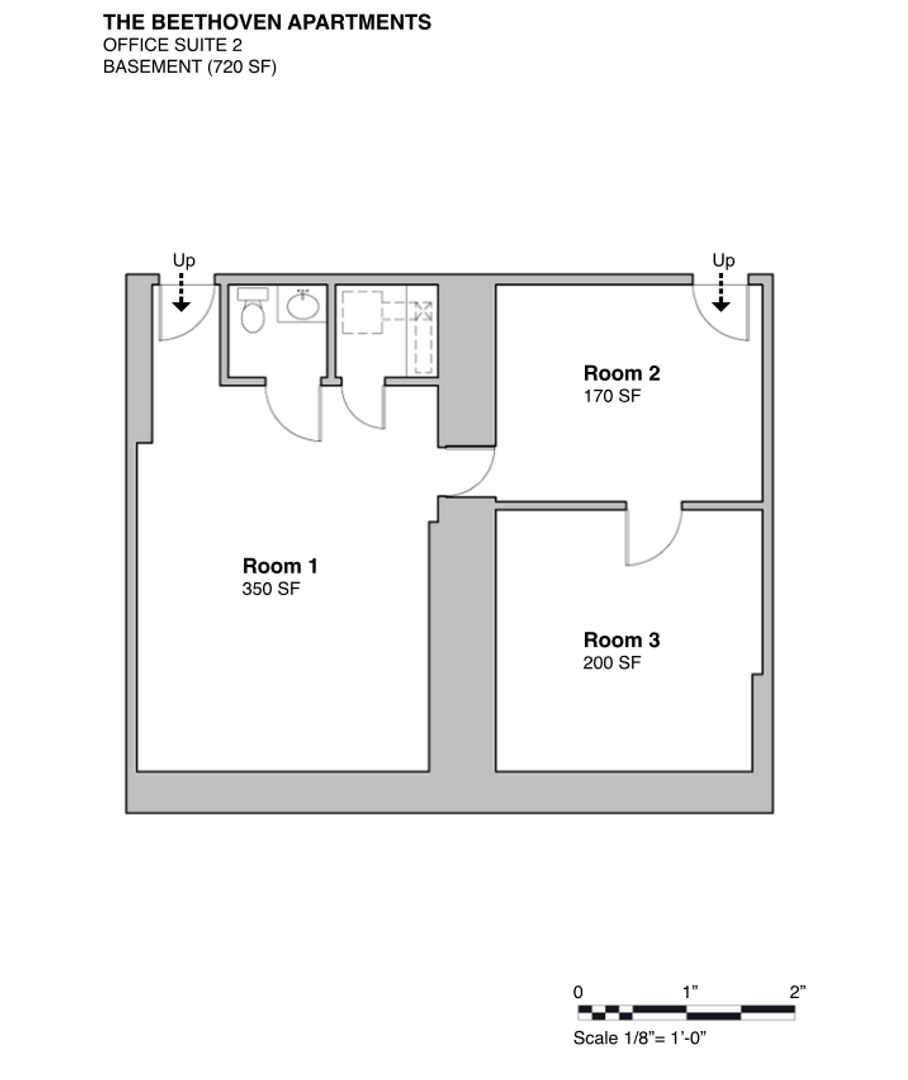
Professional Office Suites / Flex
Professional office/flex space ideal for established businesses or startups. Private Suites offering space solutions for small businesses with a private entrance accessible through an adjacent garage.
Includes all utilities, parking available.
Located at The Beethoven in the Bolton Hill neighborhood of Baltimore City. Enjoy an exquisitely maintained environment, conveniently located near top-rated institutions of higher learning, the area’s best shopping, and quick connections to anywhere.
Be inspired and create.
Includes all utilities, parking available.
Located at The Beethoven in the Bolton Hill neighborhood of Baltimore City. Enjoy an exquisitely maintained environment, conveniently located near top-rated institutions of higher learning, the area’s best shopping, and quick connections to anywhere.
Be inspired and create.
Contact us:



